RIBA Architecture Gallery

RIBA Architecture Gallery

The new Architecture Gallery at the Royal Institute of British Architects (RIBA) headquarters building allowed drawings, photographs and models from the Institute’s permanent collection, including original works from Ludwig Mies van der Rohe, Sir John Soane, Sir Christopher Wren and Andrea Palladio, to be publicly displayed for the first time.

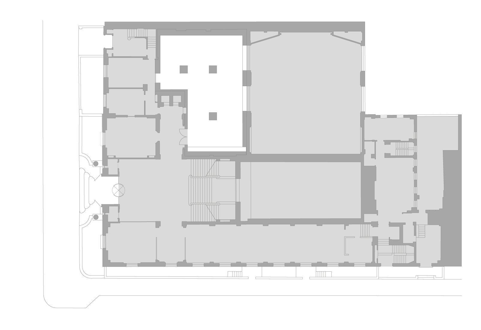
The gallery, dedicated to temporary exhibitions, has been achieved by converting an existing service lightwell and series of disused offices deep within the plan of the Grade II* listed building. Originally designed by Grey Wornum in the 1920s, the intervention acknowledges Wornum’s progressive architecture, which visually and physically links and illuminates the main spaces of the headquarters through a series of large doors and windows.

The new gallery creates visual links from the ground floor into spaces previously unseen by the public. These connections enhance the architectural experience and interpretation of the historic building. Rather than a conspicuously radical intervention, the gallery blends the threshold of existing to new with carefully matched detailing of space, light and material, in order to extend Wornum’s original vision of a welcoming ground-floor gallery and events spaces within the institution.

Carmody Groarke designed the 2017 exhibition 'Mies van der Rohe + James Stirling: Circling the Square' in the gallery. The exhibition presents a renewed examination of two iconic architectural schemes proposed for the same site in the City of London. The design creates an open installation within the gallery, where the permanent architecture of the space physically supports the temporary proposal. The intention is that the exhibition design seamlessly blends into the gallery, allowing rarely-seen objects to come to the fore.

Awards:
Shortlisted for the AJ Retrofit Award for RIBA Architecture Gallery
Winner of an invited competition to design a new permanent gallery for the Royal Institute of British Architects

Client: Royal Institute of British Architects
Location: London
Status: Completed 2015
Model photography: Richard Davies
Photography: Richard Davies / Carmody Groarke

RIBA Architecture Gallery
RIBA Architecture Gallery
RIBA Architecture Gallery
RIBA Architecture Gallery
RIBA Architecture Gallery
RIBA Architecture Gallery
RIBA Architecture Gallery
RIBA Architecture Gallery
RIBA Architecture Gallery
RIBA Architecture Gallery
RIBA Architecture Gallery
RIBA Architecture Gallery
RIBA Architecture Gallery
RIBA Architecture Gallery